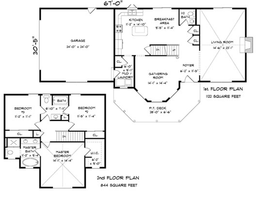
WEDGEWOOD

1966 sq. ft.

::   Getting Started   ::   Floor Plans   ::   Photos   ::   Panelized Construction   ::   Contact   ::   Home   ::